Survey services marker and tape on construction site Sydney

Services Offered

Boundary & redefinition surveys

Determine or re-establish property boundaries. This could include placing or replacing existing boundary marks such as pegs.

Detail and Topographical Surveys

Capture natural and man-made site features including levels and contours to support design, planning, and development.

Identification and Final Surveys

Locate structures in relation to boundaries for council compliance, identifying potential encroachments or easements, calculating setbacks for renovations as well as providing reports and solving property disputes.

delimitation surveys

Performed when a parcel of land has a limited title, is old title or unregistered land. The boundaries are investigated, and a new Torrens Title plan is prepared for registration.

Subdivision and consolidation Surveys

Known as a “Redefinition Survey”, subdivision surveys are performed where a client wishes to split one parcel of land into two or more parcels. Conversely, a consolidation survey is the opposite, where two or more lots are combined into one title.

Occupation Certificates survey

Similar to an identification survey but is performed to assist your council (or your certifier) in issuing an occupation certificate. This type of survey can also be performed on a smaller scale, such as when a pool is installed for example.

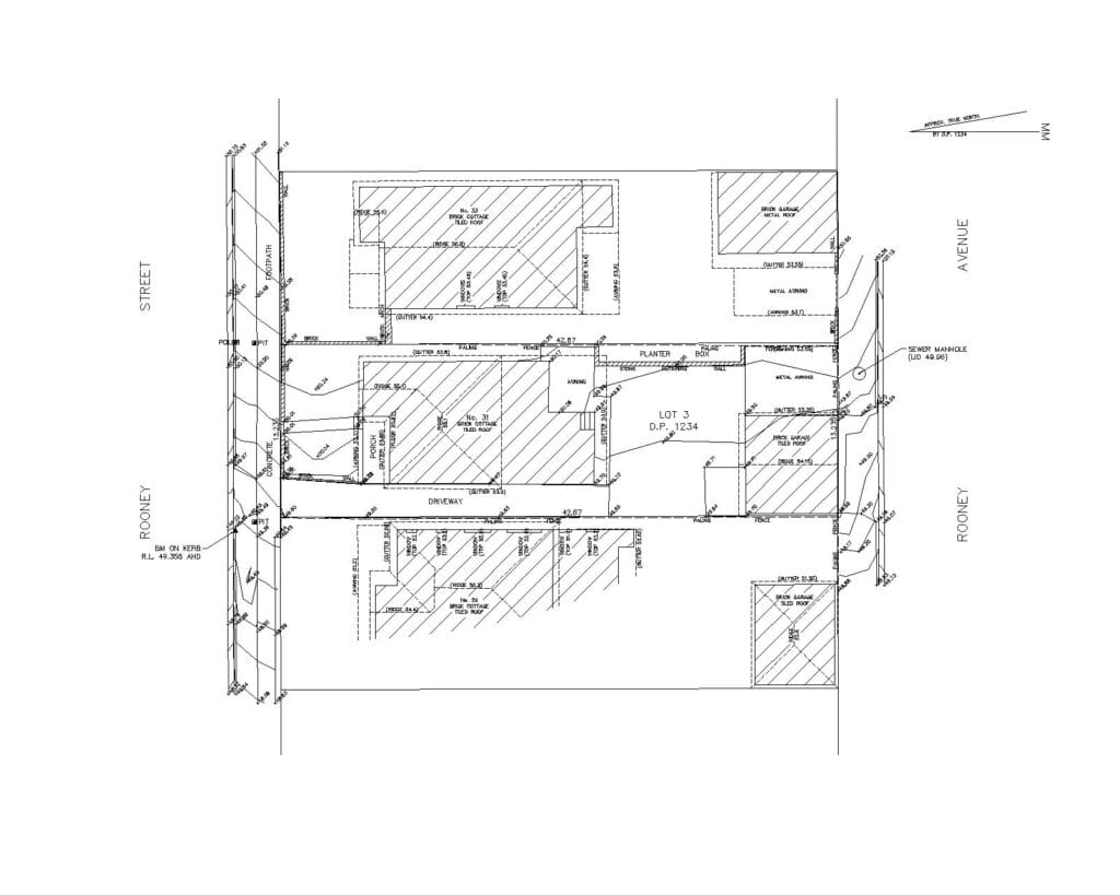
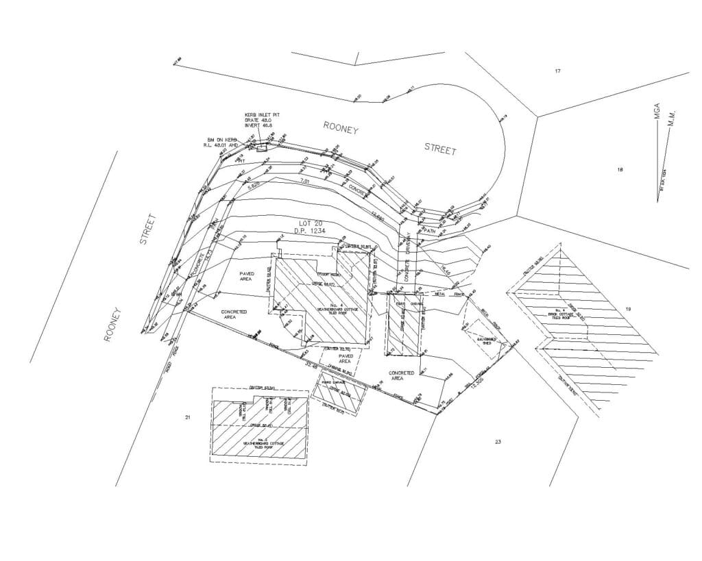
The samples below have had certain identifying information removed for privacy reasons, but represent relatively standard detail surveys. Surveys can be tailored to suit upon request.

Servicing all of NsW

Having worked on major projects across NSW, we now welcome smaller jobs, delivering the same reliable service every time.